|
|
|||||
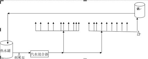
昨天,湖南西门机电迎来了与河北保定乐凯公司的首度合作,乐凯公司经过多方的考察及咨询决定于我司采购 HQS-250-50 。此次合作如此顺利主要是因为我司的产品能够解决乐凯特殊工作环境中噪音大、混合不均匀、振动、熔化锅内热水量需求小的问题,汽水混合器不加热或产生突突突噪音 而乐凯所采购的 HQS 汽水混合加热器是一种装 传感器 和仪表元器件是 仪器仪表 与自动化系统最基础元器件之一。 传感器 和仪表元器件具有服务面广、品种繁多、需求量大等特点,其技术水平和产品质量的提高,将为我国制造业信息化奠定基础。 现状与问题 我国 传感器 和 仪器仪表 的技术和产品,经过发展,有了较大的提高。全国已经有 1600 多家企事业单位从事 传感器 和 时值万物丰收的金秋十月,怡人的微风吹拂着西门人幸福的脸庞,10月22日西门机电销售部前往著名的历史文化名城凤凰,展开一段充满着湘西苗族神秘色彩和人文气息的浪漫之旅。 我国著名文学作家沈从文先生给后人留下了很多描写凤凰当地人文景观及生活习俗的作品,其中以对沱江水为生的船家和水手着墨颇多。一大早,销售部的同事 随着科学技术的飞速发展和自动化程度的不断提高,我国 仪器仪表 行业也将发生新的变化并获得新的发展。 仪器仪表 产品的高科技化,必将成为日后仪器仪表科技与产业的发展主流。 世界近 20 年来,微电子技术、计算机技术、精密机械技术、高密封技术、特种加工技术、集成技术、薄膜技术、网络技术、纳米技术、激光技术、超 2011 年第八届中国(温州) 泵阀 管道展览会暨第三届中国(永嘉) 泵阀 博览会将于10月28-30日在温州国际会展中心举行,将有来自国内外300多家 泵阀 及相关企业参会,展会规模达500多个标准展位,是目前国内规模最大的 泵阀 专业展会。展会期间,将举办中国 泵阀 产业发展论坛、 泵阀 产品专业技术对接会、全国 阀门 标准化 传感器作为现代科技的前沿技术,是现代信息技术的三大支柱之一,也是国内外公认的最具发展前途的高技术产业。专家指出,传感器技术直接关系到我国自动化产业的发展,传感器技术强,则自动化产业强。由此可见传感器技术对 自动化 产业乃至整个国家工业升级的重要性。 就世界范围而言,传感器市场上增长最快的依旧是汽车市场 从目前 阀门 行业来看,我国与国外 阀门 行业存在较大差距, 主要特征体现在如下几方面: 1、国内新建、扩建工程项目,普通 阀门 产品严重供大于求,企业之间竟相压抑,无序竞争,假冒伪劣,市场很不规范,导致部份 阀门 生产企业在竞争中,连年亏损。随着市场经济的发展和完善,特别是进步世界贸易组织(WTO),其市场变 为求 潜水电泵 的性能完好,应当对潜水电泵进行定期检査和维护( 1 年 1 次),要求做好检修的记录。 ① 用手转动潜水电泵试看潜水电泵转动是否灵活,检查潜水电泵管路及接合处有无松动或漏水现象。 ② 检查潜水电泵电缆线有无破损以及电源、电气装置是否可靠,电源电压、频率是否和铭牌要求相符,其偏差是否在使用条件 |
||||||





